
| WTG抬耙式刮泥機 | |||||||||||||||||||||||||||||||||||||||||||||||||||||
![]() ![]() ![]() ![]()
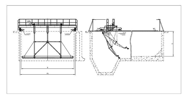
工作原理:
刮泥耙下降、撇渣耙下降-刮泥機由池端(出水端)始點向泥、渣槽端行駛,將污泥、浮渣刮集輸送至終點(進水端)-刮泥耙上提、撇渣耙上提-刮泥機由終端向始端換向行駛-抵達始端后停機或進行另一循環。
型號意義:
應用領域:
抬耙刮泥機用于污水處理廠平流沉淀池,將沉降在池底的污泥刮集至集泥槽,并將池面的浮渣撇向集渣槽。
技術優勢:
● 結構簡單、重量輕。
● 維護簡單、方便、運行費用低。
● 新型的傳動機構,不用聯軸器,對中方便、結構緊湊。
● 根據用戶需要,行走輪可為橡膠輪、尼龍輪、鋼輪。
● 獨特的開關組件,使提耙、放耙運動準確可靠。
![]()
| |||||||||||||||||||||||||||||||||||||||||||||||||||||
| 上一頁:WG型刮泥機 下一頁:周邊轉動刮泥機 | |||||||||||||||||||||||||||||||||||||||||||||||||||||
![]() | |||||||||||||||||||||||||||||||||||||||||||||||||||||